19 Beautiful Design Your Floor Plan

Design Your Floor Plan jaycompdevelopment floor plan designConvenience Store Floor Plan Design Convenience Store Design Floor Plan Design Liquor Store Design Convenience Store Design Company Store Equipment Walk In Cooler Refrigeration Glass Doors Commercial Ice Machines Electrical Layout Jaycomp Design Your Floor Plan horizonsrvLuxury Pair our premium floor plan options with a wide range of mix and match features makes each RV unique and created specifically for you re comfort and enjoyment
plan floor plan designer htmDesign floor plans with templates symbols and intuitive tools Our floor plan creator is fast and easy Get the world s best floor planner Design Your Floor Plan your dream home Sater Design offers 1 story and 2 story house plans Home designs for luxury homes craftsman houses country cottages small houses etc roomarrangerDesign your room office apartment or house plan gardens and more
designbasicsSearch thousands of home plans house blueprints at DesignBasics to find your perfect floor plan online whether you re a builder or buyer Design Your Floor Plan roomarrangerDesign your room office apartment or house plan gardens and more classroom 4teachersOutline Your Classroom Floor Plan For students the classroom environment is very important The size of the classroom and interior areas the colors of the walls the type of furniture and flooring the amount of light and the
Design Your Floor Plan Gallery

floorplan 1F_copia, image source: www.archdaily.com

01_KAS_Publication Project_Fact_and_Design_Concepts_6, image source: www.archdaily.com

r_suite, image source: www.archdaily.com

80688734_107 silos 090511 plan a4 allard architecture, image source: www.archdaily.com
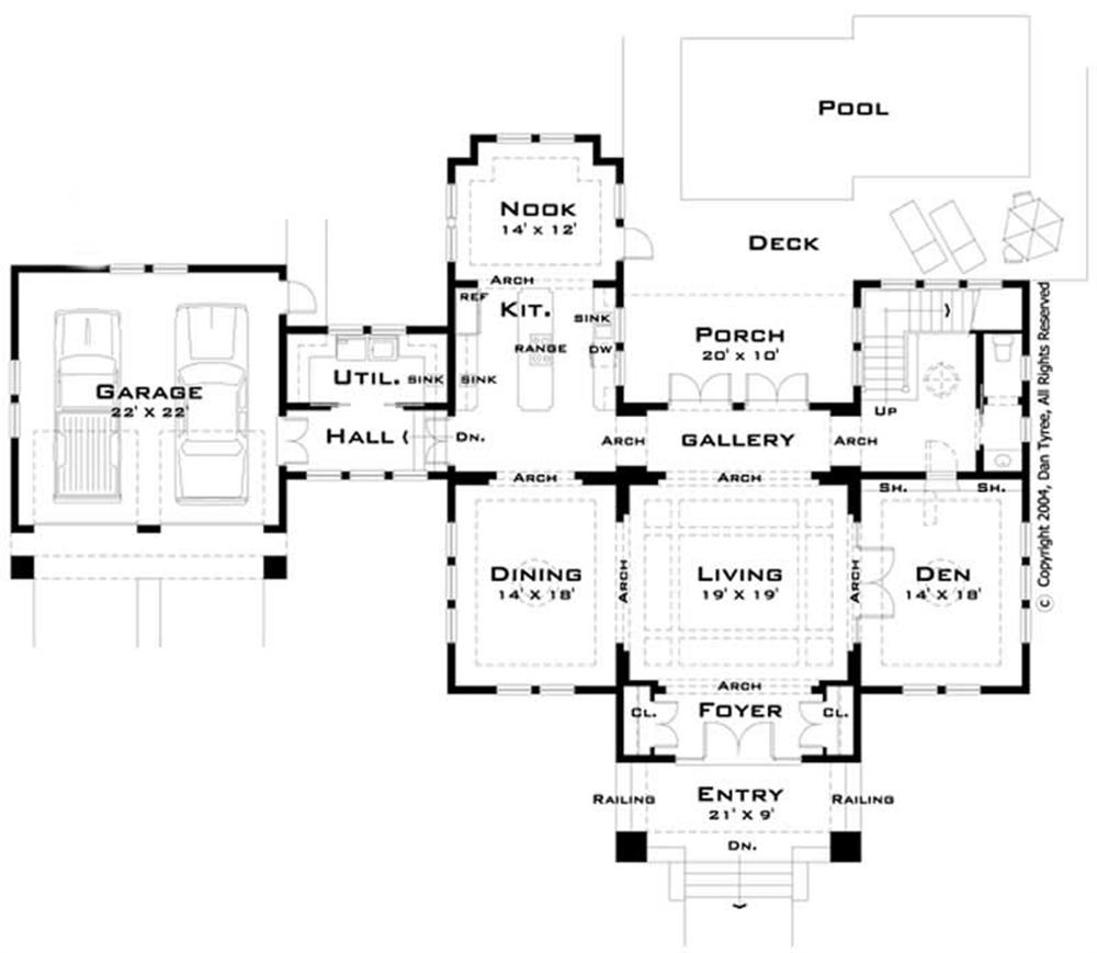
FLR_LR00221_1000, image source: theplancollection.com

133 Hazelton condo development proposed site plan IMG_3403, image source: thetorontoblog.com

AX 4bdrm Ground Floor, image source: crystalrivers.co.ke

carport_plan_20 094_flr, image source: associateddesigns.com

Beautiful Custom Corner Wardrobe Designs Ideas 1, image source: www.achahomes.com

231, image source: emrenoblog.wordpress.com

pexels photo 239886, image source: www.pexels.com

photo makeover 9b, image source: www.janelockhart.com

Leicester_Market_stalls, image source: commons.wikimedia.org

free_blueprint_symbols_4, image source: www.houseplanshelper.com

infographic people outline, image source: www.edrawsoft.com

7smodels, image source: edrawsoft.com

pg 50_rehearsal rooms, image source: www.constructionspecifier.com
![]()
public opinion vector illustration several people icons share their opinions 35712044, image source: www.dreamstime.com